Australia

# Sold Contact Agent

6 Wedge Court, Glen Waverley, Vic 3150

# Location

Description

Contemporary Refinement within GWSC Nestled in a quiet court setting and backing on to the beautiful serenity of Scotchman’s Creek Trail, this captivating residence provides ample space for large and growing families, and tranquil views of the reserve with the feeling of bringing the outdoors inside.

Meticulously maintained, impressively updated and flawlessly presented, charming interiors offer a gourmet kitchen featuring stone benchtops and Miele appliances, serving a spacious open-plan living/dining area filled with saturating northern light.

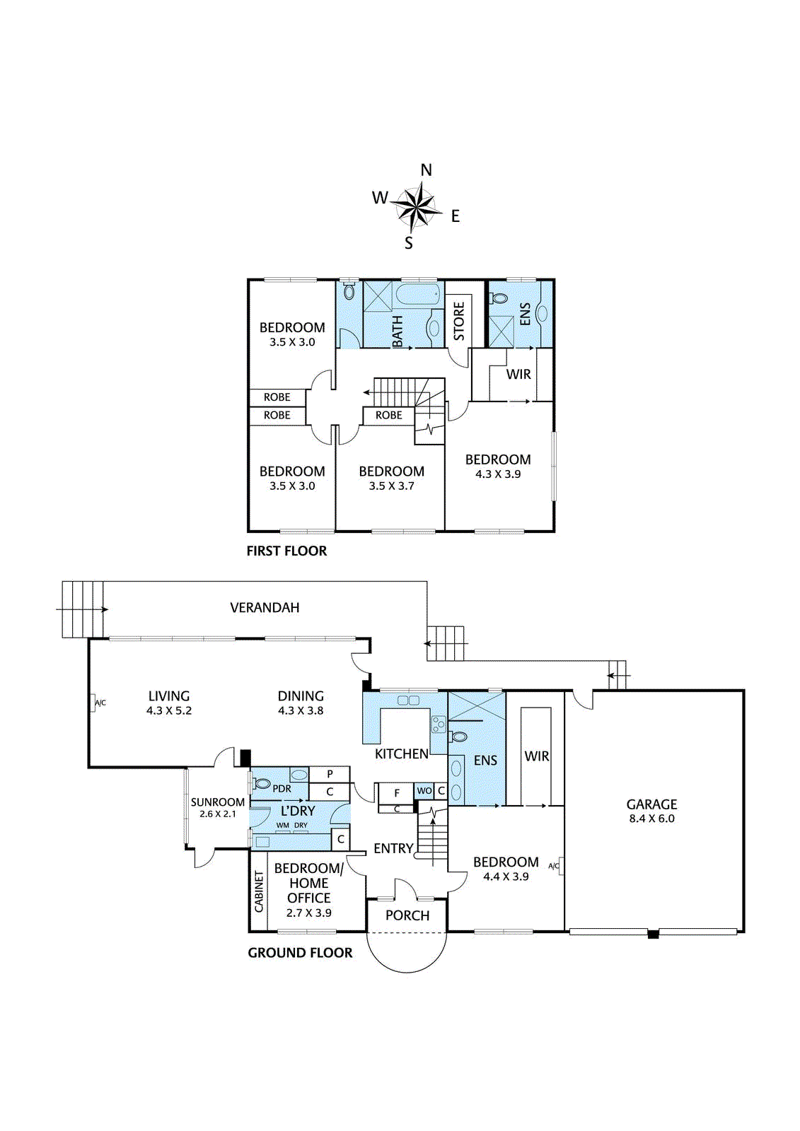
An abundance of accommodation is further highlighted by 5 over-sized robed bedrooms, including the convenience of ground and upper-level main bedrooms, each fitted with a deluxe ensuite and WIR – highlighting lifestyle flexibility. Catering for modern family needs, this immaculate home is complete with home office/6th bedroom, powder room, ducted heating, split system AC, generous rear garden and over-sized double garage.

Enjoy a peaceful position to raise your family within the Syndal South Primary and Glen Waverley Secondary College catchments, with Scotchman’s Creek walking/bike paths, leading schools including Wesley College, Caulfield Grammar, transport, The Glen and Kingsway all within easy reach.

View More #

Floor Plans

Location

  • Contact the agency

    To request an inspection

  • # Call # Email

Jared Wei

Agent Name

Sue Li

Agent Name

# Report Listing

Looking for a property?

  • Top listings
  • Investment
  • Development
  • Personal home
  • Price reports
  • Suburb reports

Do you own a property?

  • Place a free listing
  • Services for private advertisers
  • Guide to selling your home
  • Insurance
  • Improve the photos of your listing
  • Value your property for free

Are you a real estate proffesional?

  • Publish your agencies properties
  • Already a client? Log into your account
  • Advertising on Australian Real Estate
  • Australian Real Estate data technology for property insights
  • Real Estate courses